⑫「築50年店舗改装」~ネイルサロンへ/銀座5丁目 | 株式会社ハウセット
美容系商品を扱う会社様より初実店舗開業のご相談を頂き、この度リフォームさせて頂きました。築50年の銀座一等地のビルのワンフロアを短期間で、お施主様のご要望を詰め込んだリフォーム工事でした。今回リ...
https://www.wantedly.com/companies/company_6088270/post_articles/922848
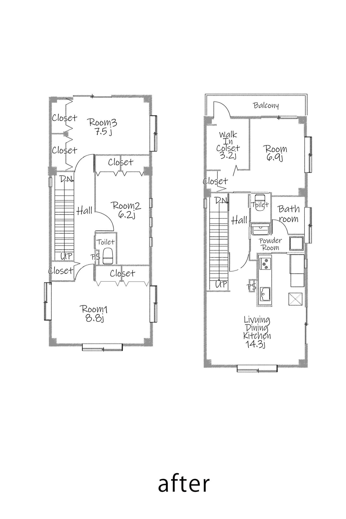
家族構成の変化から、リノベーションを行った事例になります。
家事が少しでも軽くなる様に、プランニングしました。
何と言っても水廻り!LDKを丸っと逆方位に入替、キッチン・洗面・UBを集約。
さらに、収納力!主寝室には3帖強のウォークインクローゼット+クローゼット。
上階にある洋室にも各々大型のクローゼットを。
キッチンやリビング、洗面室、階段には、常に取り出しするモノを置く可動棚を設置。
色にもこだわりをご提案しました。小学生のお子様達に各々アクセントクロスを選んでいただき、そこから更にクロスに合う色で扉を塗装しました。
ラベンダー...ネイビー...イエロー...暗くなりがちな室内廊下も明るくハッピー空間になりました。
今まで、こういったご経験はありませんか?
・特定メーカーと契約しているので、指定の住宅設備のご提案しかできない。
・予め決められた型(プラン/メニュー)があるので、その中からしか提案が出来ない。
ハウセットの考えるリフォームは、単純に「直す/修繕する/取り替える」といった機能を回復・改善する事だけであはありません。
目の前にいらっしゃるお客様の『人生を豊かにする』リフォームを目指しています。
そのため、ハウセットのリフォームでは、枠に捕らわれない自由なプランニングが出来るのが特徴です。
生活の場である住まいには、そこで生活をされてきたお客様の想いが詰まっています。
そのような想いにお答えするのに、「コンビニエンスストアー」のように、並べられた商品(メニュー)を販売するだけになってしまっては、寂しいではありませんか。
ハウセットでは、デザイン性はもちろんのこと、お客様のご要望/ニーズに対して、無限にある選択肢の中からプランを組み立てて、最善のコーディネートをしていきます。
お客様の予算の範囲中で、安全性・品質が守られているのであれば、一切の制限はありません。プランナーの自由な発想でご提案が可能です。
今まで、様々な制約で実力とアイデアを発揮できずに悶々としていた方、是非当社にエントリー下さい。
『お客様の満足度は70%だけど、制限があるからしょうがない』
ではなく、私たちと一緒に
『お客様の120%の満足』
を目指してプランを作ってきましょう!
=========