京都開発拠点の設立メンバーに聞く、立ち上げの経緯と今後の展望について | MoneyForward's ROOM
こんにちは!広報の早川です。2019年2月に開発拠点を京都にオープンしたマネーフォワード。そのオープニングイベントの様子についてはこちらにて公開していますが、今回は京都開発拠点立ち上げの経緯や、...
https://www.wantedly.com/companies/moneyforward/post_articles/155140
こんにちは
マネーフォワード 京都開発拠点の村上です。
2019年2月に開発拠点をオープンしました。
関西エリアの皆様、UIターンをお考えの皆様、海外の皆様興味ある方は、wantedlyをご参照ください。
今日は京都拠点とコミュニティのお付き合いについてご紹介します。
まだまだ関西での認知が足りないので発信がんばります!
さて皆さま、京都拠点はオープンコミュニティに対してコミュニティ開催の場所の提供をしているのはご存知ですか?
東京では弊社エンジニアが関わっているコミュニティが利用してくれたりしているのですが、
京都開発拠点も同じく関わっているコミュニティに場所の提供をしています。
京都開発拠点のメンバーにも、コミュニティ活動はぜひ楽しんでほしい。とお伝えしています。
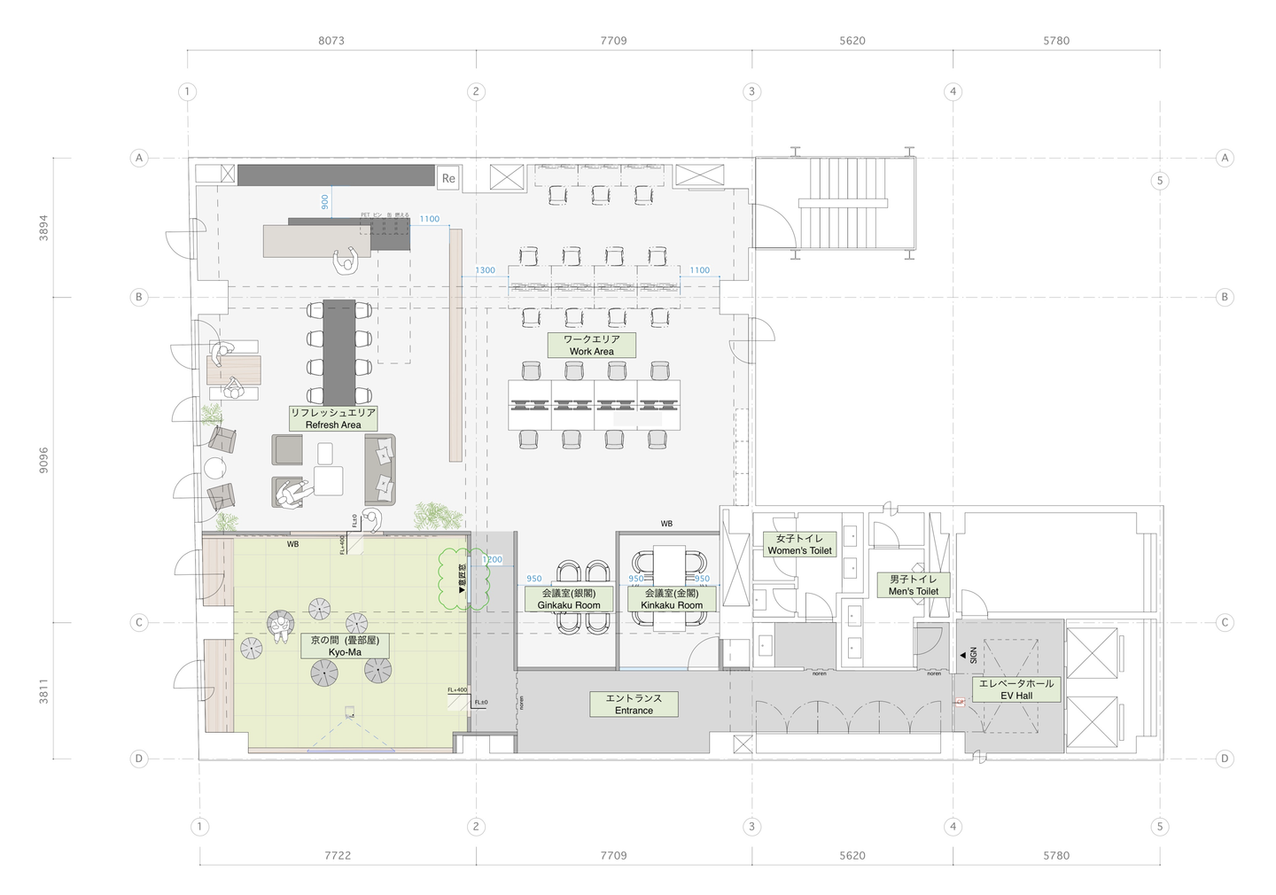
マネーフォワード 京都開発拠点は以下の様なフロアになっておりまして、
京の間には20名強(最大30名強)入れる和風な畳の部屋があります!
また懇親会が開催可能なリフレッシュエリアもありますので、コミュニティイベントの後に軽食やお酒を飲んだりできるのです。
どんな雰囲気か?は上述のオープニングイベントに行ってきたよ|マネーフォワード|note を覗いてみてください♪
我々はオープンソースを活用してビジネスが成立しています。
少し昔の記事ですが、この頃から変わらずオープン&フェアの精神で活動しています。
マネーフォワードとオープンソース・ソフトウェア | Money Forward Engineers' Blog
MoneyForward Meetupレポート「ワークOSSバランス」 | Money Forward Engineers' Blog
今回、京都開発拠点をオープンするにあたって、 関西の学生/エンジニアに対して成長の機会や場を提供したいと思っていました。
そして、直接雇用以外にエンジニア市場を盛り上げることが出来ないか?という事で「コミュニティ活動を通じて貢献しよう!」と考えました。
京都エリアのエンジニア人口が増えたりスキルも高まる事で、京都のビジネス/エンジニアリングが盛り上がるといいなと思っています。出来たばかりの為、未完成な点や使いにくい点等もまだまだありますが、少しづつ改善していきたいと思います。
先日は、弊社の京都開発拠点をkyoto.rbコミュニティに利用いただきました。
今までは、有料かつ10名が最大のコワーキングで開催していたkyoto.rbさんですが、
今回は弊社の畳部屋を利用して、15-20名で参加費無料で開催しました。
kyoto.rbさんからは、「場所もよく、グループワークもしやすく良かった」とフィードバックをいただきました。
弊社メンバーからも、同コミュニティに2名参加させていただきました。
(とっても楽しかったみたいです!オーガナイザーの皆様ありがとうございました!)
※ 開催には社員立会いが必要なので、現在はお付き合いのあるコミュニティや勉強会を中心に受けております。
※ 組織の成長に合わせてオフィスやルールも変化する場合もあり、開催が出来なくなる事もあるかもしれません、ご了承お願いします。
関西で、京都で働きたいエンジニアを募集しています!U/Iターンも歓迎です。
興味のある方はお声がけください!