- プロジェクトマネージャー
- 空間を創るPM
- デザイン設計|上流から参画
- Other occupations (3)
- Development
- Business
- Other
― 名古屋市立工芸高等学校の学生さん2名が参加してくれました!
こんにちは!総務経理の松永です。
11月に名古屋市立工芸高校から学生さん2名がインターンシップに参加してくれました!
私自身も業界未経験で入社したばかりなので、
「現場をもっと知りたい」
「今後のインターン受け入れマニュアルも作りたい」
という思いで、学生さんと一緒に3日間参加しました。
■ メイン課題は“本物の案件”にチャレンジ!
インターンのメインは、住環境事業部がお客様に実際にご提案している案件をもとに
「どんな空間にデザインするか?」を考え、プレゼンすること。
・お客様のご要望は?
・どんな間取りなら暮らしやすい?
・色味はどうする?
・家具の配置は?
などなど、リアルな制約の中でアイデアを形にしていく「プロの仕事」を体験させてもらいました。
高校生には少し難しい内容だったかもしれませんが、2人とも真剣に、そして楽しそうに取り組んでくれていました!
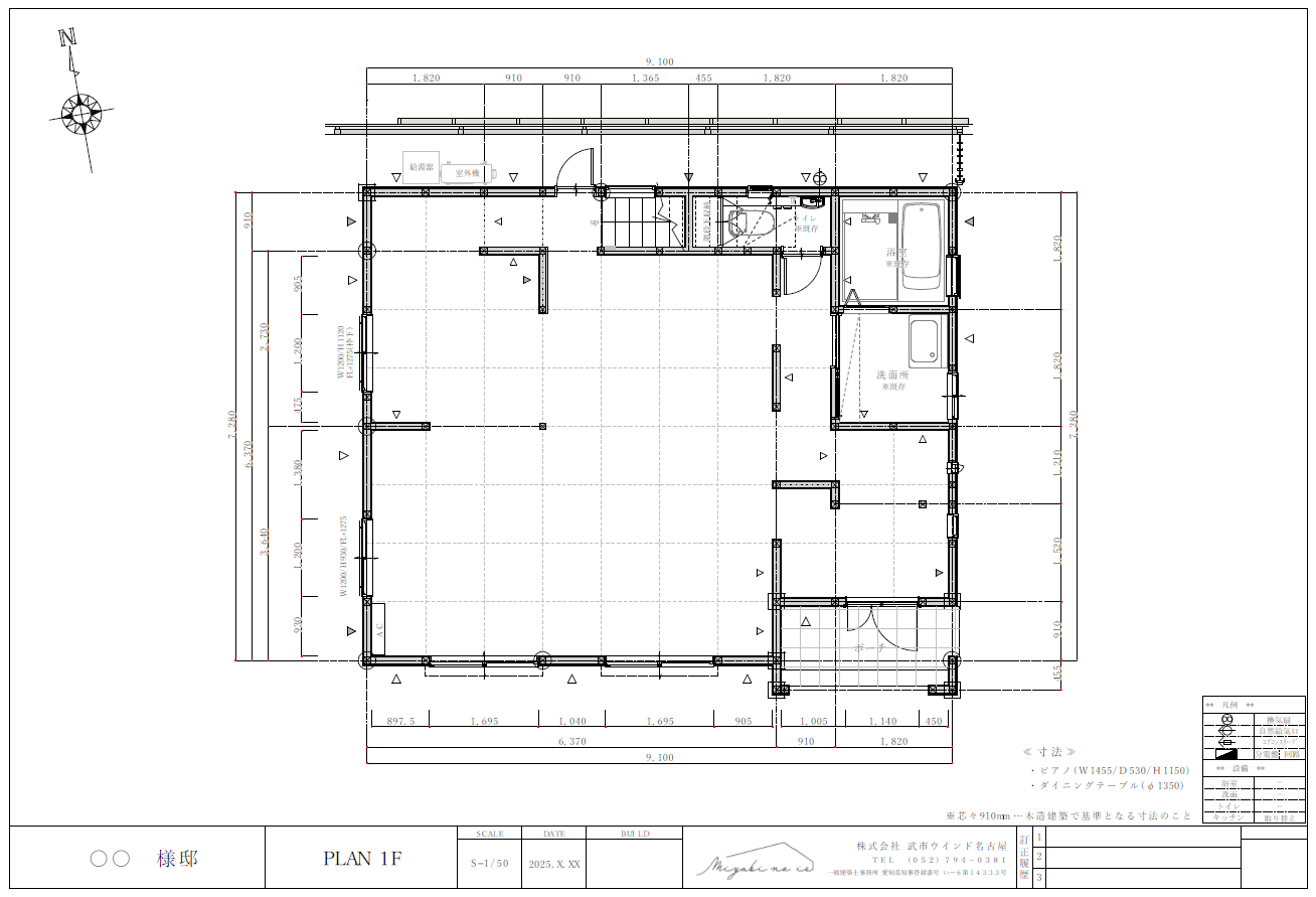
先輩社員がくれたリフォーム計画。これをもとに考えました。
■ 現場見学もたっぷり体験!
3日間の中では、座学だけでなく「リアルな現場」にも足を運びました。
- リフォーム施工中の現場見学
- LIXILさんのショールームツアー
- 課題案件のお客様邸へ同行
- 担当営業、デザイン設計の商談に同席
- 自分たちのデザイン案をプレゼン
- 先輩社員との質問会
…と、かなり盛りだくさんの内容!
学生さんたちは「こんなに色んなことを体験できるとは思わなかった!」と驚いていましたし、同行した私自身も「現場ではこんな視点で考えているんだ」と学びが多い時間でした。
■ 設計デザインの難しさと奥深さを実感
お客様邸の外せる壁などをすべて取った平面図。これをどう設計デザインするか?
実際にやってみると、ただ好きなようにデザインできるわけではありません。
- エアコンや既存設備の位置
- 壊せない壁
- 家事動線や生活導線
- 家族構成や暮らし方
- 日当たりや構造的な制約
など、さまざまな条件の中で最適解を考えるのは本当に難しい…。
それでも学生さんのアイデアには柔軟さがあり、こちらが学ばされる場面も多くありました。
■ 最終日はプレゼンに挑戦!
最終日には、先輩社員10名ほどが見守る中で自分たちの案をプレゼンしました。 見られている中でも緊張した様子はなく、しっかりと説明する姿に感心しました。 自分の好きなデザインを押し付けるのではなく、一つ一つの間取りや配置について「なぜそうしたのか」という根拠や理由を交えて話す姿が本当にかっこよかったです。 仕事で人の家や施設を設計デザインする立場として、今後も使い続けるお客様のことを第一に考える姿勢は素晴らしかったです。
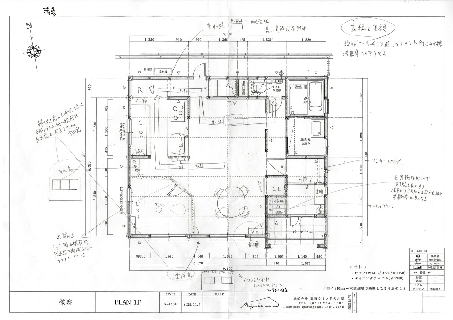
インターン生のデザイン設計①
それぞれのサイズや意匠だけでなく、なぜ?というところまで書込んでいる。また、棚なども描いてイメージがしやすいですね。
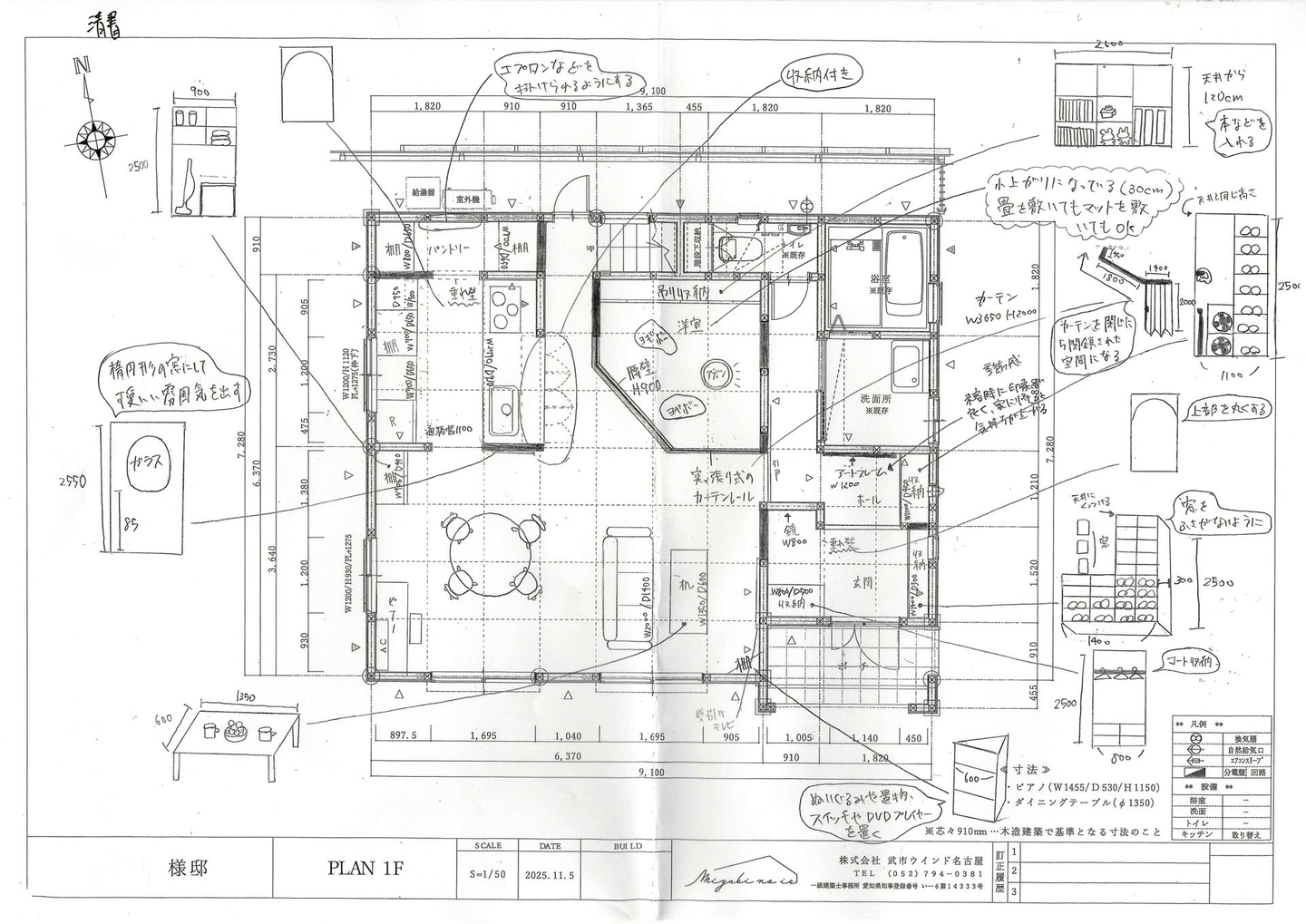
インターン生のデザイン設計②
指示線を使い部分部分を拡大して描いてあり、わかりやすいです。2人とも書込みがすごい、、、、
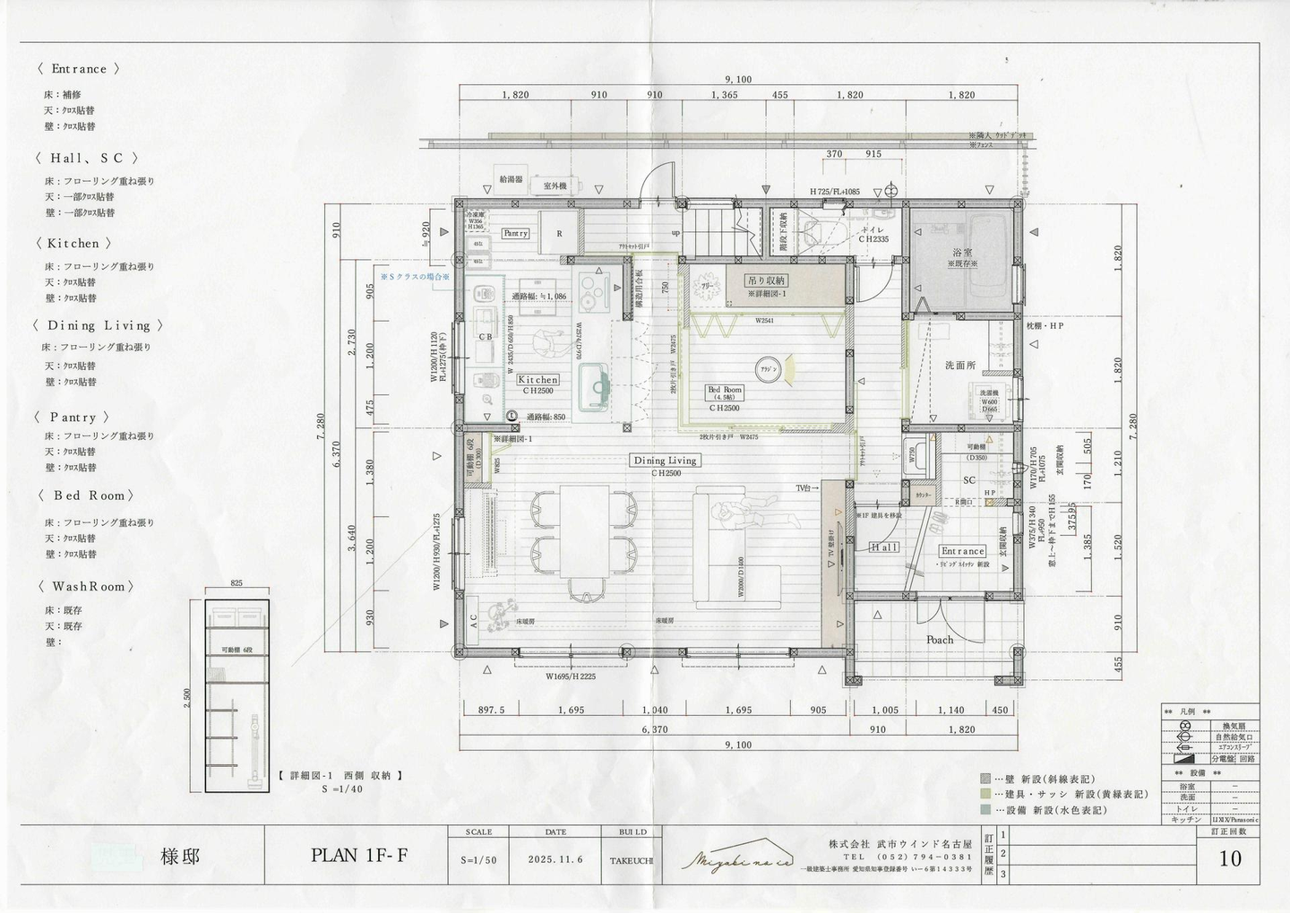
先輩のデザイン設計②
上記+3DCADで立体的でより具体的に描かれてました。右下の訂正回数10に非常に丁寧なプロセスを経て、複数回にわたりお客様と打合せを重ねながら完成度を高めていった姿勢が見て取れ非常に感銘を受けました。
■ 未来の進路のヒントになれば嬉しい
今回の体験が、参加してくれた学生さんたちにとって
- 空間デザインや建築の仕事のリアルを知る機会
- 将来を考えるヒント
- 社会人の働き方に触れるきっかけ
になっていたら嬉しいです。
インターンに参加してくれて本当にありがとうございました!
またいつでも遊びに来てくださいね。
✨ 今後もインターン受け入れを積極的に行っていきます!
今回の経験を踏まえて、今後は受け入れマニュアルやプログラムの改善を進め、
より学びの多いインターン体験を提供していく予定です。
年明けには中学生、大学生の職場体験&インターンも決まっています。
今から楽しみですね!
・・・・
・・・
・・
・
最後は私のデザインですが、、、業務の合間を縫って参加していたので、、、(言い訳
精進します