⑫「築50年店舗改装」~ネイルサロンへ/銀座5丁目 | 株式会社ハウセット
美容系商品を扱う会社様より初実店舗開業のご相談を頂き、この度リフォームさせて頂きました。築50年の銀座一等地のビルのワンフロアを短期間で、お施主様のご要望を詰め込んだリフォーム工事でした。今回リ...
https://www.wantedly.com/companies/company_6088270/post_articles/922848
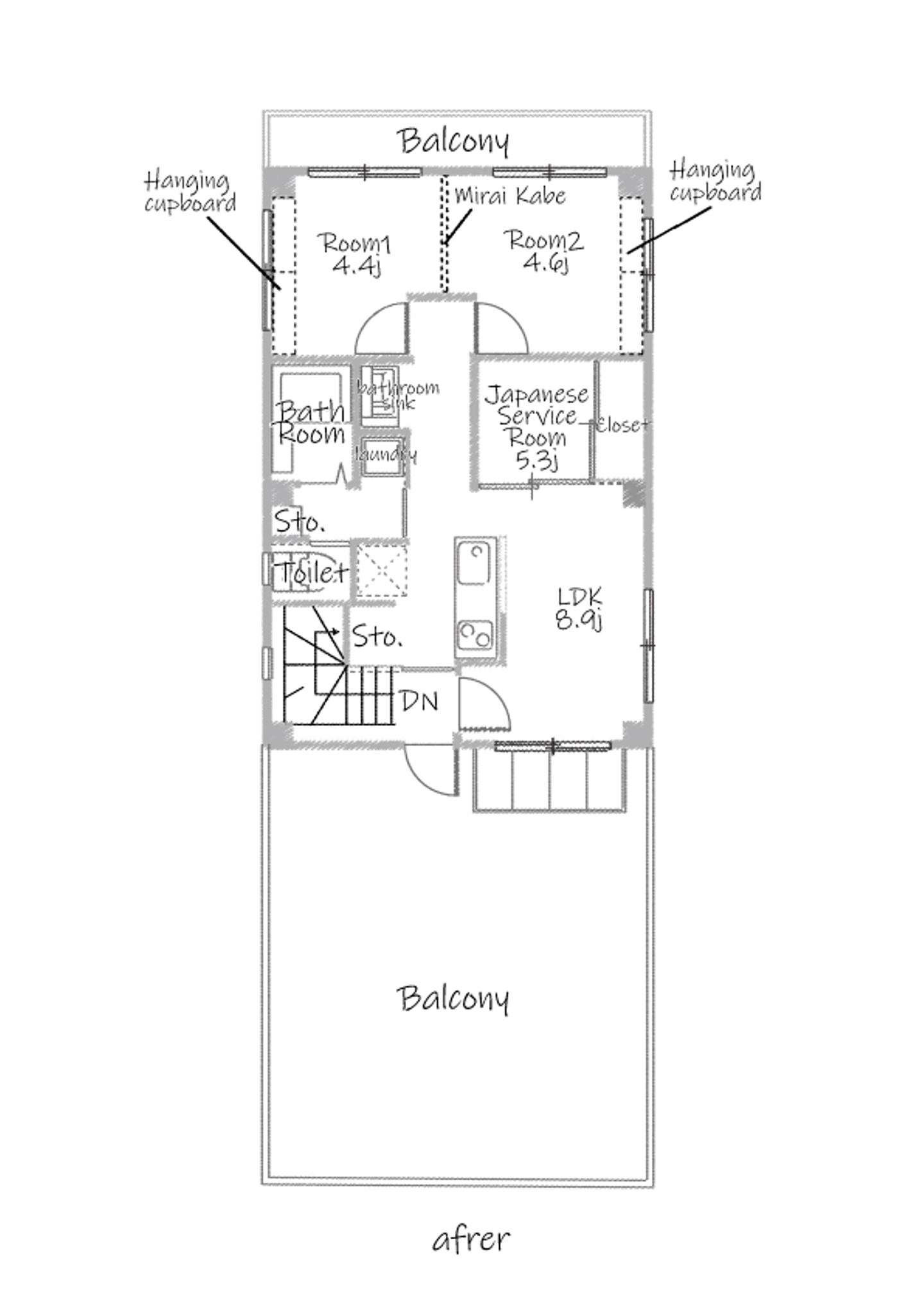
生まれ育ったご実家の3階(居室3室・トイレ・洗面)を4人家族での居住スペースにリノベーションされたいとのご依頼からスタート。1LDK+Sから将来2LDKへ変更可能なプランをご提案させて頂きました。
リノベーションをしようと思ったきっかけは?
それまでは文教区に住んでいたんですが、妻の実家がここで結婚した当時から将来的にはこの家へ戻りたいねという話をしてたんです。子供が小さいうちの方が転校もしやすいのかと思って。
どんな風にリノベーションの会社を探されましたか?
最初はネットで検索していて...『リフォーム会社』『口コミ』で検索していて、口コミの内容や件数を判断軸にしながら、良さそうだなと思った会社を2社選びました。実はハウセットさんは入ってなかったんです。途中でハウセットさんを見つけて追加した感じですかね
ハウセットでリノベーションをしようと決めた理由を教えていただけますか?
正直、他の二社さんに不満を感じる部分があったんです。私たちの意見をなかなか反映してくれなかったり、営業さんに厳しい態度をとられてしまったり... 。ちょっと他の会社も探さない?と妻と話しまして、ハウセットさんをみつけたんです。それで鈴木さんにお会いした時に、その柔軟さに心打たれて(笑)正直お見積りはハウセットさんが一番高かったんですが、高い買い物をする覚悟はしていたので、それなら納得できる方がいいよねという話になって。決め手は鈴木さんの対応力ですね!
リノベーションをして気にいっているところはありますか?
45㎡の空間に家族四人が住める様きれいに収めてもらった事ですかね。キッチン、浴室、洗濯機置き場を追加してもらってこのフロアで生活が完結出来るようになりました。 それから収納。和室の畳の下の収納にはすぐ使わない物を入れたり、押入れは季節で着ない服を入れています。寝室のオープンクローゼットもすごく便利で気に入ってます。脱衣所の棚もスペースをうまく使って設置していただいて。キッチンは最後の最後に棚に収納の引き出しを入れてもらって、とても気に入っています。 寝室はみらい壁(将来的に間仕切り壁を設置できる)にしていただいたので、娘二人のそれぞれの部屋にしようと考えてます。
リノベーションをしてライフスタイルなど変わった点はありますか?
コロナで在宅勤務が増えたんですが、前の家は狭くてキッチンでずっと仕事してました。今はちゃんとテレワークスペースが確保できたので集中できる様になりました。それから下の階に妻の両親がいるので、親子三代仲良く過ごせる様になった事ですかね。二世帯住宅の一番良いところだと思います。
これからリノベーション会社を探そうと思っている方にポイント等があれば何か一言。
比較は絶対必要で、2・3社はお話を聞いた方が良いと思います。価格や内容・担当さんの人柄だったり、判断基準はそれぞれご家庭であるとは思うので、比較検討をしっかりした方が良いと思います。私たちはリノベーション後も長いお付き合いができる会社さんがよかったので、ハウセット さんに決めました。
今まで、こういったご経験はありませんか?
・特定メーカーと契約しているので、指定の住宅設備のご提案しかできない。
・予め決められた型(プラン/メニュー)があるので、その中からしか提案が出来ない。
ハウセットの考えるリフォームは、単純に「直す/修繕する/取り替える」という機能を回復・改善する事だけであはありません。
目の前にいらっしゃるお客様の『人生を豊かにする』リフォームを目指しています。
そのため、ハウセットのリフォームでは、枠に捕らわれない自由なプランニングが出来るのが特徴です。
生活の場である住まいには、そこで生活をされてきたお客様の想いが詰まっています。
そのような想いにお答えするのに、「コンビニエンスストアー」のように、並べられた商品(メニュー)を販売するだけになってしまっては、寂しいではありませんか。
ハウセットでは、デザイン性はもちろんのこと、お客様のご要望/ニーズに対して、無限にある選択肢の中からプランを組み立てて、最善のコーディネートをしていきます。
お客様の予算の範囲中で、安全性・品質が守られているのであれば、一切の制限はありません。プランナーの自由な発想でご提案が可能です。
今まで、様々な制約で実力とアイデアを発揮できずに悶々としていた方、是非当社にエントリー下さい。
『お客様の満足度は70%だけど、制限があるからしょうがない』ではなく、私たちと一緒に『お客様の120%の満足』を目指してプランを作ってきましょう!
=========