事業のスケールに伴い、設計・インテリアコーディネートのサポートをしていただける方を募集します!!
何をしている会社?
私たちFURUELは古民家を改修し、体験型民泊の企画から運営までを行っています。近年、訪日外国人は増加する一方で、日本にはただ観光するだけでは触れることのできない魅力がたくさん。そこで、宿泊施設をこれまでの「泊まるための場所」ではなく、日本の深い魅力に触れる体験として提供しています。
これまでは日本の伝統文化にある魅力を体験してもらう民泊を大阪市内に作ってきました。今後は地方の過疎地域に眠る魅力を発信する施設も作ります。
日本の伝統産業や地方には、人知れず失われようとしている魅力が少なくありません。私たちは宿泊体験を通じて、これらの魅力のファンを増やすことに貢献したいと考えています。
魅力をどうやって伝えるか
まず、古民家の仕入れを行います。この立地条件や広さなどは、この後のコンセプトに大きく影響します。
次に、物件のコンセプトとなる「伝える魅力」を決め、その為に必要な・望ましい体験や内装を考えます。そのあと工事や家具の搬入、消防関連などの各種申請を行い、予約サイトに掲載してオープン。魅力決めやオープン後のメンテナンス、改善はインターン生が主体となって取り組んでいます!
たとえば、こちらの物件は日本酒をコンセプトにしたSAKEHOUSE。日本酒の味の豊かさを4系統の日本酒やそれぞれに最適なおつまみ、様々な"おちょこ"で伝えます。日本酒って、同じものでも"おちょこ"次第で味が変わるんですよ!奥深い!宿泊施設として過ごしやすさはもちろん、コンセプトである日本酒に興味を持ってもらうことを意識して酒樽を壁にディスプレイしました!
またベッドルームには日本各地の有名な日本酒を紹介する壁を作ったりと遊びゴコロ満載の施設となっています。
こんな仕事をお任せします!
一連の流れの中でしていただく主なお仕事は、施設構想・施設づくりです。設計と内装デザイン、インテリアの選定と、仕事は多岐にわたります(インターン生と一緒にインテリアの組立ても)
事業の拡大に伴い、図面・パースの作成やインテリアの選定・設置などをしていただける設計・コーディネートアシスタントを募集します!
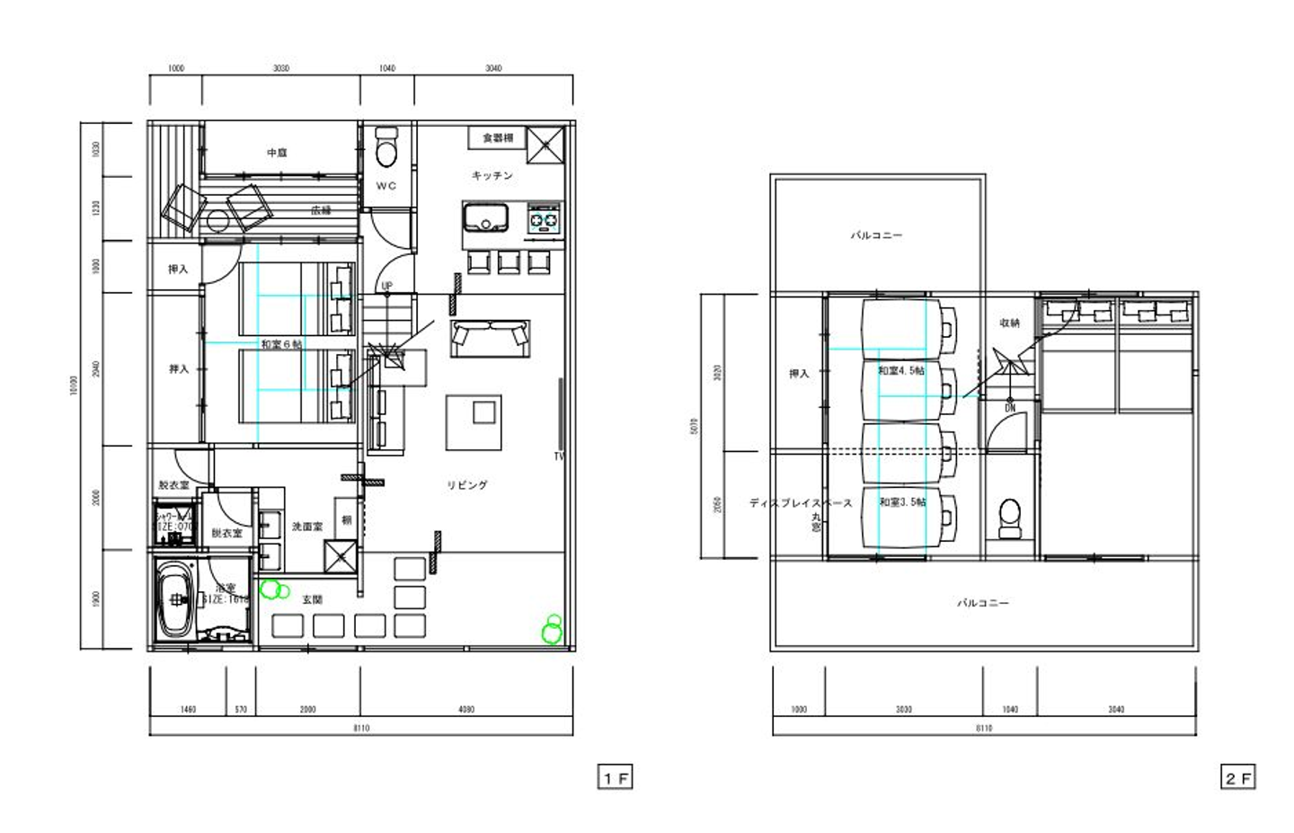
これが実際に作っている図面やパースです。
↓四季をコンセプトにした民泊
FURUELでは完成した民泊を原則一度売却し、借り戻したものを運営しています。物件の販売活動を始めるには図面やパースが不可欠なので、仕事にスピード感が求められるポジションです。
単なる宿泊施設への改修ではなく、宿泊する方により楽しんでもらえるよう設計・営業・インターン生とチームでアイデアを出し合いながら、それを現場の職人さんたちとカタチにしていきます。設計~家具搬入までトータルでデザインに関わるので、物件が完成したときの喜びは他では味わえません!!
歓迎条件と必須条件
<必須条件>
・CADソフト使用経験(JWCAD、AUTOCADなどなんでもOK!)
・平日10:00~16:00程度の出勤(より長時間・短時間の勤務も応相談)
・内装デザインが好き
<歓迎条件> こんな人がいるとより一層助かります!
・住宅設計に関する知識
・インテリアコーディネーターの経験
ご興味のある方は、お電話(06-6766-4210)かホームページ(https://furuel.co.jp/)よりメールでお気軽にお問い合わせください!