Business social network with 4M professionals

  • 設計スタッフ

代官山ヒルサイド|新しい住宅ブランドをつくるリノベーション設計士募集

設計スタッフ
Side Job

on 2026-03-27

40 views

0 requested to visit

代官山ヒルサイド|新しい住宅ブランドをつくるリノベーション設計士募集

Side Job
Side Job

石原 弘明

建築家プロフィール MUSUBI house設計への想い石原 弘明住宅や賃貸の設計と、犬猫の保護活動の経験をむすびあわせて、 人とペットそれぞれの「心地よさのむすび」につなげていきたい、 そのような想いでMUSUBI house ペット共生住宅を始めました。一級建築士 工学博士(地域施設計画)早稲田大学大学院修士課程、東京大学大学院博士課程修了。 内藤廣建築設計事務所を経て1998年石原設計所を設立。 注文住宅、大手賃貸系不動産の賃貸住宅商品開発等の他、保育園やクリニック等、 暮らしに関わる様々な種類の設計に関わる。 東日本の震災をきっかけにペットの保護団体に所属し、里親が決まるまでの犬猫の 一時預かりを行っている。60匹以上の犬猫と暮らす中で、ペットと共に暮らす家の 在り方を体験を通して考え、設計に活かしている。

株式会社アセットコミュニケーションズ's members

建築家プロフィール MUSUBI house設計への想い石原 弘明住宅や賃貸の設計と、犬猫の保護活動の経験をむすびあわせて、 人とペットそれぞれの「心地よさのむすび」につなげていきたい、 そのような想いでMUSUBI house ペット共生住宅を始めました。一級建築士 工学博士(地域施設計画)早稲田大学大学院修士課程、東京大学大学院博士課程修了。 内藤廣建築設計事務所を経て1998年石原設計所を設立。 注文住宅、大手賃貸系不動産の賃貸住宅商品開発等の他、保育園やクリニック等、 暮らしに関わる様々な種類の設計に関わる。 東日本の震災をきっかけにペットの保護団体に所属し、里親が決まるまでの犬猫の...

What we do

MUSUBI houseは「人とペットがともに心地よく暮らせる住まいやサービス」を追求しています。住まい手やオーナーとの対話を重ね、ライフスタイルや価値観に合わせた最適なプランを提案しています。建築設計だけでなく、コミュニティ形成やAI駆動型アプリ開発にも取り組み、デジタルとリアルを融合した新しい住まいの価値を創造します。

What we do

MUSUBI houseは「人とペットがともに心地よく暮らせる住まいやサービス」を追求しています。住まい手やオーナーとの対話を重ね、ライフスタイルや価値観に合わせた最適なプランを提案しています。建築設計だけでなく、コミュニティ形成やAI駆動型アプリ開発にも取り組み、デジタルとリアルを融合した新しい住まいの価値を創造します。

Why we do

くらしをむすぶ「住まい」を創る  Mission:くらしをむすぶ「住まい」を創る  Vision:MUSUBI house 真善美の実現 真:知性・論理 > 建築設計・施工技術、インターネット技術 善:倫理・意志 > お客様との長期信頼、ライフタイムバリューの提供 美:美意識・感性 > 建築家およびチーム全体の美意識、独自の造形

How we do

<働きやすい労働環境> ・在籍社員の2/3以上が中途入社で、馴染みやすい雰囲気があります。 ・一人ひとりがプロフェッショナルとして裁量を持ち、難易度の高い案件はチーム助け合う文化があります! ・子育て世代の社員も多く、互いを尊重しあうアットホームな社風です。 ・社員同士のコミュニケーションの為にも定期的なカジュアルパーティを開催しています。

As a new team member

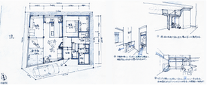
【業務内容】 ペット共生住宅等のライフスタイル特化型住宅・集合住宅・リノベーションプロジェクトに関わる設計業務。 企画や設計の初期段階から関わっていただきます。 ・図面作成(Vectorworks)およびプレゼン資料作成(Illustrator/Photoshop/PowerPoint 等)  (コンセプト提案やクライアント向けプレゼン資料作成) ・現地調査、打合せ同席、模型制作、資料リサーチ ・AIパース作成 ・確認申請業務、施工管理 【こんな方を歓迎します】 リノベーション設計、インテリアデザイン、ペット共生住宅設計、商品企画、住宅事業の経験がある方 建築・インテリア・デザイン系の学生、またはデザイナーの方 Vectorworks、Illustrator、Photoshop、を使用できる方 ペットや人との共生、暮らしのデザインに興味がある方 模型づくりやリサーチなど、丁寧な作業が得意な方 チームでのコミュニケーションを大切にできる方
0 recommendations

    0 recommendations

    What happens after you apply?

    1. ApplyClick "Want to Visit"
    2. Wait for a reply
    3. Set a date
    4. Meet up
    Job Post Features
    Online interviews OK

    Company info

    Founded on 09/2011

    45 members

    東京都渋谷区猿楽町29番8号 ヒルサイドテラスE-32