【HINOKO SAUNAができるまで vol.2】災害・コロナを経て、サウナ小屋のデザインが決まるまで | トレイルヘッズ株式会社
※この記事は2021年に書かれたものです。今年4月に、東京都檜原村のキャンプ場『HINOKO TOKYO』に誕生した『HINOKO SAUNA』。ここが出来上がるまでの裏側&裏話をブログで紹介し...
https://www.wantedly.com/companies/trailheads/post_articles/1037378
※この記事は2021年に書かれたものです。
今年4月に、東京都檜原村のキャンプ場『HINOKO TOKYO』に誕生した『HINOKO SAUNA』。ここが出来上がるまでの裏側&裏話をブログで紹介していきます!
今回は本編に戻ってサウナ室内作りの過程を増田桃子がお伝えします。これまで数々のサウナに入ってきたものの、作るのは初めて!サウナストーブ選び、中の椅子の配置の仕方など、細部まで気を抜かずに設計を進めていきました。
▼サウナ作りのひとつ前のストーリーはvol.2を、春夏のHINOKOの楽しみ方はvol.3をご覧ください!
コンセプトが決まってきたところでサウナ室内の設計も同時進行で進めていきました。フィンランドや国内含めていろんなサウナを体験してきたのですがそれでも作るのは初めてです!
機能的なところは不安もあったため、実際に自身でサウナトラックを作った経験のあるHINOKOサウナアンバサダーの齊藤浩一郎さんや、日本のサウナシェアのほとんどを締めるサウナ販売企業METOSの山本さんにもご意見いただきながら検討していきました。
特にサウナの要となるストーブは初めからむちゃくちゃ迷いました。
まずは熱源は薪か電気か。
当初は、火が燃えるのを見ながらサウナを楽しみたいという思いから薪を検討していました。ですがmetosさんからストーブを紹介してもらっている際に、薪ストーブの煙突に煤がたまりそれが原因で火災が発生した事例を聞き、電気へと考えが変化します。HINOKOは基本的には無人。なので、事故の心配がより少ない方にしようということに。
しかしその後も、工事コストを算出したり、改めてコンセプトを考える中で、「よりHINOKO SAUNAに適しているのはどちらだろう」と考え直しました。
私たちの原体験は、やっぱりフィンランドの湖畔のAirbnbで体験したサウナ。自分たちで薪を割って火をつけて温めたサウナを楽しんだ、あの最高の時間です。(フィンランド旅の様子はこちらからお読みください)
最終的には、あの体験をHINOKO SAUNAでも体験してもらいたいと思い直し、薪ストーブに決定をしました!
煙突は定期的なメンテナンスをすることで、安心して薪ストーブを使えることがわかりました。余談ですが、湿った薪をストーブ内で燃やすと不完全燃焼を起こしやすく煙突に煤が付きやすくなるので、必ず乾いた薪でストーブは温めるということが大切です。
熱源は薪に決まりましたが、さらにストーブも決めなくてはなりません!
国内メーカー?フィンランド製?ロシア製?ドイツ製?などなど・・選択肢がありすぎましたw
最終的には石で囲われているビジュアルに惹かれたことと、部屋のスペックにも合うことからHARVIAのLegendシリーズに決めました。同シリーズは石の積載量の違いで、150、240、300等といくつかのタイプがあります。今回は石が200kgほど入るものを選びました。
配送業者から引き渡された石なんと200kg!
ドーン!!
これだけ大量の石があったまるとロウリュもたくさんできます!
熱源以外にも決めていくことはたくさん。HINOKOの会員さんも期待してくださっているいるサウナなので、私たちも細部まで気を抜かずに設計していきました。
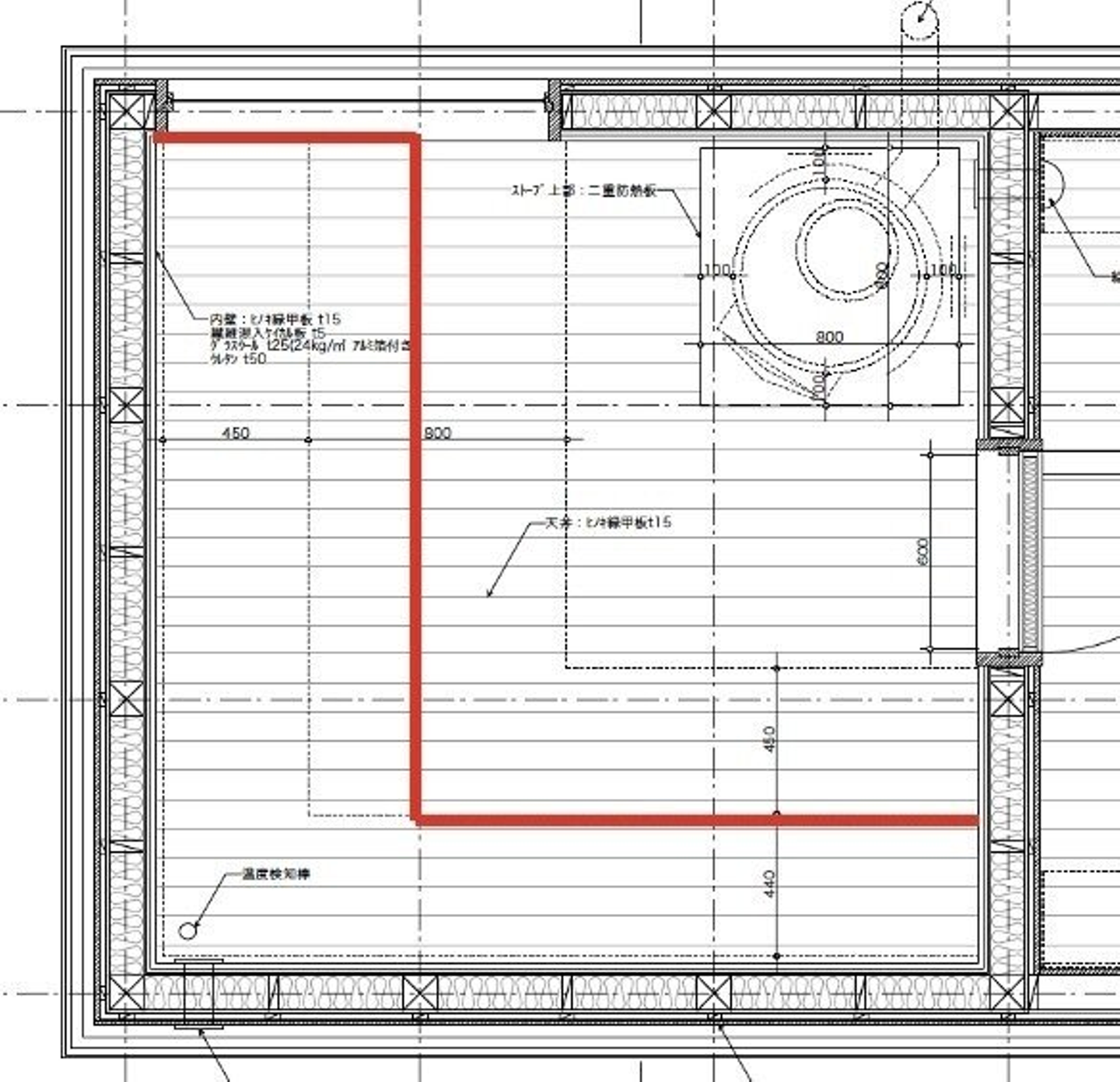
例えば座面の広さも最後まで悩んでいたポイントのうちの一つです。
HINOKO SAUNAはL字にベンチが2段になっており上下好きなところに座れるように計画しています。この座面の幅も、上に座る人が足をおろすことを考えて、下段を広くとるか。または寝たり・あぐらをかいてゆったり入れるように上段を広くとるか・・・・
こんなポイントでもプロジェクトメンバーの意見が分かれました。
座面の広さを変えるかの検討図(赤ライン部分)
どちらも良さはあるのでアンケートを取ってみたところ、面白い結果になりました。
9割の人が「上段を広くとる」方を選択!
より温度の高い上段が人気とは、熱いサウナが好きな方が多いんだなと思いました!
この結果を受けて、上段を広く取って好きなスタイルで体験してもらえるサウナになりました。
そして完成した室内はこちら!
悩んだ末に決定した「HARVIA Legend 240」
プライベートで貸し切って使えるサウナなので、ぜひ広い上段で横になって寝サウナを体験してもらいたいです!全身でロウリュを感じられてめちゃくちゃ気持ち良いですよ。
---------------------------------------------
[写真] 北アルプスでサウナを楽しむ増田。雪山登山でテントやストーブを運び、頂上付近でテントを張って、温まったら雪にダイブというエクストリームな遊び方。
Writing:Momoko Masuda(TRAIL HEADS)
Editing:Shizuka Oikawa(TRAIL HEADS)